|
|
Rotterdam
KLINGER The NetherlandsNikkelstraat 2 3067 GR Rotterdam
Elsloo
KLINGER Service Center LimburgBusiness Park Stein 208A 6181 MB Elsloo
Velsen-Noord
KLINGER The NetherlandsRooswijkweg 200 1951 MD Velsen-Noord
Moordrecht
Hadro TechniekZuidbaan 351 2841 MD Moordrecht |
Spoed of vragen over de beschikbaarheid?
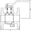
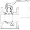
| Type | KP-2642 |
| Materiaal | Gietstaal EN-GP240GH |
| Drukklasse | PN 40 / PN 16 |
| Kogel | RVS GX5CrNiMo19-11-2 |
| Spindel | RVS X2CrNiMoN22-5-3 |
| Handgreep | Tot DN80 RVS GX5CrNiMo19-11-2 |
| DN80 en groter RVS GX5CrNi19-10 / Staal verzinkt | |
| Afd.elementen | KFGN (Glasvezelversterkt TFM, stikstof gesinterd) |
| / KFM (gemodificeerd PTFE) | |
| Spindelafdichting | KFGN / Grafiet / KFAM (TFM met antistatische vulstof) |
|
|
|
| Inbouwlengte | EN 558-1 serie 27 |
| Aansluiting | Flensaansluiting EN 1092-1 |
| Temperatuur | -10°C tot +220°C (druk en temperatuur afhankelijk) |
Voor meer informatie over onze kogelkranen kunt u contact opnemen met:
Vul onderstaand formulier in om in te loggen