|
|
Rotterdam
KLINGER The NetherlandsNikkelstraat 2 3067 GR Rotterdam
Elsloo
KLINGER Service Center LimburgBusiness Park Stein 208A 6181 MB Elsloo
Velsen-Noord
KLINGER The NetherlandsRooswijkweg 200 1951 MD Velsen-Noord
Moordrecht
Hadro TechniekZuidbaan 351 2841 MD Moordrecht |
Spoed of vragen over de beschikbaarheid?
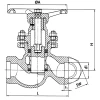
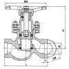
| Type | KP-175 |
| Materiaal | Gietstaal GP240GH |
| Drukklasse | PN 63 |
| Bovendeel | Smeedstaal |
| Handwiel | Gietijzer EN-GJL-200 |
| Spindel | RVS X20Cr13 |
| Plunjer | RVS X14CrMoS17 |
| Afdichting | KLINGER KX-modul |
|
|
|
| Aansluiting | ANSI B 16.11 |
|
|
|
| Temperatuur | -10°C tot +400°C |
Voor meer informatie over onze afsluiters kunt u contact opnemen met:
Vul onderstaand formulier in om in te loggen